In lockdown 2020, I came across a list of every monastery dissolved under the government of Henry VIII in 1535-40. My mission, which I chose to accept (because what else was I going to do) was to find the location and condition of every English monastery and its church. This. Is MonasteryQuest™.
It is reasonably well known that the dissolution of the monasteries completed in 1540 resulted in six new cathedrals in England. These were the first new dioceses since 1133 (when the Augustinian Priory at Carlisle was made a cathedral), and the last until 1836 (when Ripon Minster was elevated to finally officially take the burden off York for the rising industrial towns). These were Chester, Gloucester, Oxford (shifted site, see below), Peterborough, Bristol and (for a decade) Westminster. What is much less well-known is that around 1540 the Crown was contemplating converting some – indeed quite a few – of the other monasteries they had (or would shortly have) in their possession into the cathedrals of new dioceses.
![4752798423_ccb9375ce0_b[1]](https://stainedglassattitudes.com/wp-content/uploads/2020/07/4752798423_ccb9375ce0_b1-e1594505759531.jpg)
A cathedral is more than just a great church, of course. It is also an institution that administers a diocese. For this, and maintaining the tradition of daily divine service with a staff of canons, it needs income. Therefore it is important to understand that these sites were chosen more for their location and their assets that could be assigned to a new bishop and his chapter of secular canons, rather than simply architectural merit of their church. It is just that a monastery rich in income was also invariably rich in architecture too.
With the exception of Ely and Rochester, England’s dioceses, compared to somewhere like France, were exceptionally large. This is partly why its cathedral churches were always built on a gigantic scale from the Conquest onward (and arguably, some of the pre-Conquest cathedrals like Canterbury and Winchester, for their date, were extraordinarily ambitious buildings for sees at the outer rim of Christendom). The medieval diocese of Lincoln, for instance, reached all the way down to the way down to the Home Counties, and was greatly relieved by the creation of the bishoprics at Peterborough and Oxford.
![41333_v0_large[1]](https://stainedglassattitudes.com/wp-content/uploads/2020/07/41333_v0_large1.jpg)
Now the Crown controlled the Church of England, it was in its interest to manage it more efficiently. A manuscript in King Henry VIII’s own hand, sets out a plan that the south part of Lincoln diocese would be split into around six dioceses (transcript here, the MS is in the British Library under the old Ashburnham House shelfmark of Cleopatra E4, f.365). There are further leaves bound into this volume and also plans held at the Public Record Office at Kew that revise and refine his proposals, which are detailed in this book chapter by Paul Jeffrey where I first learnt of this nascent scheme for extra cathedrals that emerged during the Henrican dissolutions.
Eventually, the pressures on the Tudor government, such as the fall of Thomas Cromwell only a couple of months after the dissolution of the monasteries had been completed, and the involvement of England in the Italian War of 1542-46 meant plans beyond the initial six new dioceses and new cathedral chapters were shelved for the typical disposal of monastic sites for personal favour and material profit.
Only in the post-industrial early 19th century was England’s need for smaller dioceses answered with more cathedrals. Some of the Henrician proposals were eventually fulfilled: St Albans Abbey church, preserved via the sale to its town for £400 as a parish church, became a cathedral in 1878. Cornwall finally regained its own bishopric with the Diocese of Truro being established in 1876. Bury St Edmunds, while its Abbey church was totally stripped down to a husk of rubble core, the parish church of St James just in front of it became the seat of a bishop in 1914. Leicester became a diocese in 1926 (along with Blackburn, Portsmouth, Guildford and Derby), but with the church of St Martin in the city centre becoming the seat of the bishop. The era of expansion was halted when Shrewsbury was defeated in the House of Lords in the same year, because of concerns it would weaken old foundation offices like the Bishop of Hereford.
Because this post ended up being rather larger than I expected, here’s a bunch of anchor links to each section so you can come back later!
Diocese of Bedfordshire
Diocese of Buckinghamshire
Diocese of Essex
Diocese of Oxfordshire
Diocese of North Yorkshire
Diocese of Cornwall
Diocese of Leicestershire and Rutland
Diocese of Shropshire
Diocese Nottinghamshire and Derbyshire
Diocese of Bedfordshire
Priory of St Peter, Dunstable
Augustinian canons – founded 1132 – surrendered 20 Jan 1540 – 13 canons signed the Act of Supremacy
£402 gross / £344 net

Dunstable was one of many early 12th century Austin priories founded by King Henry I, who gave the lordship of the town to the new house. It remained in good favour with the Crown through the 13th century, obtaining the proceeds of the manor of Houghton Regis and of many nearby parish churches. The judicial rights the Priory held in the town led to the usual friction between them and its citizens, and the nave of the Priory church was granted to their exclusive parochial use in 1392, which contributed much to its current architectural state.
On 23 May 1533, Archbishop Cranmer officially annulled the first marriage of King Henry VIII in the church’s lady chapel. This of course led to the Act of Supremacy which ultimately led to the destruction of that part of the building.
Some of the later documents detail the foundation of the diocese of Dunstable in great detail, suggesting it was one of the King’s suggestions that was closest to becoming reality compared to some of the other pipe-dreams we will encounter. The first Bishop of Dunstable was to be Dr George Day, master of St John’s College, provost of King’s College and Vice-Chancellor at Cambridge University (according to Henry 8 Letters and Papers Addendum Vol. 1 Pt. 2 No. 1457). He was instead appointed Bishop of Chichester in 1543.
Dunstable Priory precinct
![016+28329[1]](https://stainedglassattitudes.com/wp-content/uploads/2020/07/0162528325291.jpg)
Apart from a fragment of the gatehouse, and a rib-vaulted undercroft in Priory House which was probably part of the town-facing hospitium, there are no visible monastic remains. However much of the layout of the church and cloistral buildings were located by geophysics and are painted onto the grass (and I assume regularly renewed, since they were there when I visited in Dec 2017 and also on Google Earth).
Dunstable Priory church


We do actually retain a sizeable fragment of Dunstable Priory church which has, since 1392, entirely served as the parish church of Dunstable: its nave. It is rather disfigured, but much of this happened well before the dissolution due to its parochial tenants mucking about with it and generally making it more like a regular English parish church (as happened in many more “divided” monastic churches than you might expect, future MonasteryQuest™ instalment there).
The lady chapel, crossing tower, transepts, and the easternmost bay of the nave were demolished probably in 1545 when Crown assigned a keeper to the site. It is possible reason the last bay of the nave went is because it was the limit of the parish church as defined by the position of the stone pulpitum which now is built into the east wall.

The powerful arcades inside the building date to the middle of the 12th century, with shafts that continue up and around the second-storey gallery: the so-called “giant-order” effect. The clerestory that would have originally built on top of these gallery opens was removed by the parish in the 15th century, the aisle roofs dropped and the gallery openings glazed.
The church west front (below) is a total dog’s breakfast of a thing, but this was not really the parishioners’ fault. The luscious central portal, of the last quarter of the 12th century is very much ala Glastonbury Abbey’s lady chapel, along with the one blank bay of intersecting arcading, is all that remains of the original west front. In 1222, two west towers collapsed, presumably because the western nave bays had not been built with any of the usual wall thickening to take them. Only the north side was built up by the canons in the following decades, with a new north aisle doorway and tiers of pointed arcading. After the parish gained control of the whole nave, they added (after strengthening the bay below!) a tower on the north side, and a big buttress propping up the south side. They also of course removed an upper gable when they removed the clerestory and dropped the high roof. I hope this swipe will help you decipher this disasterpiece.


Diocese of Buckinghamshire more Bedfordshire
King Henry’s draft shows two monasteries as candidates for the “bishoprick” of Buckinghamshire. They is rather odd because both of his choices are just outside Bedford, which is, not surprisingly, not in Buckinghamshire, but in Bedfordshire. This has led historians to assume that Henry intended to lump the endowments of these two houses in with Dunstable, as its annual income would not be enough to fund a bishop and chapter alone like the £1k+ houses. It seems likely to me however, with Bedford’s position in between Dunstable (and the larger town of Luton) and Peterborough, that the King was envisioning a cathedral on its outskirts, dividing the southern part of Lincoln diocese into six dioceses (eventually it was only split between Peterborough and Oxford).
Nevertheless, these two houses are never mentioned again in subsequent documents, except Cromwell apparently preparing to throw shade on them after they had been suppressed [Henry 8 Letters & Papers Vol. 14, pt. 2 No. 427]. It’s clear to a degree Henry was spitballing stuff that he hadn’t really got much of an idea about, but whatever, let’s look at them anyway.
Priory of St Paul, Newnham
Augustinian canons – founded 1166 – surrendered 2 Jan 1540 – 16 canons at dissolution
£343 gross / £293 net
Newnham Priory originated in central Bedford in the old minster of St Paul, now the site of the parish church. In 1163, Phillip de Broi, a secular canon of the community accused of murder, despite convincing evidence against him and a foul outburst against the King’s chief justiciar in the local court, was given a slap on the wrist of the deprival of his prebend and two years penance by the Archbishop of Canterbury. That Archbishop of course, was none other than Thomas Becket, and it was one of the incidents that convinced Henry II that his estate did not have enough power over the Church regarding the process of law and the judiciary. The scandal at Bedford Minster at least influenced the move of its community about a mile east of the town to Newnham in 1166, and hastened its conversion to the Augustinian rule.
It is not clear what Henry VIII had in mind for this house (if he even knew where it actually was), but regardless in 1540 John Gostwick bought the site and almost certainly used much of the dressed stone of the monastery buildings for a total rebuild of the parish church and his manorial complex at nearby Willington, partly surviving and held by the National Trust.
Newnham Priory precinct
The size of the precinct of Newnham Priory is really quite remarkably large for a small house (one of the many advantages from their bailing out of Bedford City centre), and also a downright bizarre contrast in its various uses today. Not only was it sliced through by the Bedford and Cambridge Railway in 1860-2, its south-east corner (probably originally pasture and fish ponds), as it was always prone to flooding, is now a marina divided from a neighbouring artificial lake by a stretch of the original (but much remade) priory precinct wall. Along with north and south stretches, this wall has been recently repaired. The church and cloister, while thankfully not covered by a railway line or underwater, is still far from the most evocative monastic site.

Newnham Priory church
![BRVP-Priory-21[1]](https://stainedglassattitudes.com/wp-content/uploads/2020/07/brvp-priory-211.jpg)
After time as a Tudor mansion, pasture, gravel quarry and adjacent to a sewage works, the church and cloistral range is now under the tarmac of the car park of Aspects Leisure Centre, behind Bedford Fire Station. Trenches dug through the site have suggested a church around 70 metres long with an apsidal end and (unusually) a west porch. If we could whip the whole lot up we could learn a lot more, but it seems it was really seriously robbed out to the foundations.
Abbey of St Mary and St Helen, Elstow
Benedictine nuns – founded c.1078 – surrendered 26 Aug 1539 – 24 nuns at dissolution
£325 gross / £284 net
![IMG_9507[1]](https://stainedglassattitudes.com/wp-content/uploads/2020/07/img_95071.jpg)
Elstow (rather creatively spelt Elveststone by the King) is a little bit further out of town than Newnham, about a mile and half from the parish church of Bedford. It was founded by Countess Judith of Lens, a niece of William of Normandy. King William I gave her the manor of Elstow from the royal landholdings he obtained when he claimed the English throne. Tradition is that Judith founded a women’s convent in penance for (at least according to 12th-century chronicler Orderic Vitalis) betraying her husband Earl Waltheof to her uncle for his complicity in the revolt against the King in 1075.

The cloister was on the south side of the church and the west range and refectory survived long enough to be converted into a house by Thomas Hilderson who bought the property in 1616. The ruins passed into the Whitbread family, who I presume have come to an agreement about their custody as moves are being made to convert them into a village hall.
![20190917-133844_orig[1]](https://stainedglassattitudes.com/wp-content/uploads/2020/07/20190917-133844_orig1.jpg)
The nuns shared the church with the parish until after 1343, when the parishioners were given their own chapel of St Helen in the churchyard. The patronage of the priory was always maintained by the Crown, perhaps why it was considered by Henry under his somewhat confused “Buckinghamshire Cathedral” idea. However in 1541 he granted the site of the abbey buildings to Edward Harvey so it was clearly out of the window by then.
The Abbey church nave survives shorn of its two eastern bays. The east arm, originally apsidal but subsequently squared off, was not very long at all: in total the abbey church was only about 69 metres long. It should be noted that Bristol Abbey had just demolished and begun rebuilding its nave before the dissolution, so it was only 60 metres long when it became a cathedral in 1542.
![0148_059[1]](https://stainedglassattitudes.com/wp-content/uploads/2020/07/0148_0591-e1593789894404.jpg)
Nevertheless, Bristol Abbey church was one of the technical marvels of European Gothic, Elstow was certainly never in the same league, barely distinguishable from a large parish church. The surviving 3 bays of Romanesque arcades of about 1100 are austere, the 13th-century two-bay extension only a little more vibrant, with mouldings and stiff-leaf capitals but only one arch treated with dogtooth. The free-standing 15th-century bell tower is often viewed in a Benedictine context (e.g. Chichester, Westminster), but the close resemblance with the nearby parish of Marston Moretaine suggests it’s more to do with subsidence fears. All in all, it wouldn’t have been a great idea as a cathedral. And it doesn’t help its case Henry thought it was in Buckinghamshire.
Diocese of Essex
Abbey of the Holy Cross and St Lawrence, Waltham
Augustinian canons – founded 1060 – surrendered 23 Mar 1540 – 18 canons at dissolution
£1079 gross / £900 net

Waltham had a long and illustrious history before it obtained the distinction of being the final English monastery to be dissolved under the Act of Parliament of 1539. A ground-standing timber building as old as the 7th century was found in excavations beginning 1984, with a large building with side chambers (porticus) around 800, like the contemporary partly surviving church at Brixworth (Northants). Waltham church gained renown when it received an acheiropoieta (term for “art not made by human hands” that no one can remember how to spell) in the form of a giant flint cross, discovered on St Michael’s Hill in Montacute (Somerset). It was brought to Waltham c.1030 by an Earl Tovi, allegedly standard bearer to King Canute, who owned land in both locales. This blackened Holy Cross relic is why the powerful Earl Harold Godwinson decided to found a collegiate church here c.1053, and a giant eastern transept was built in the manner of Old St Peter’s in Rome to honour the supernatural artefact.

After a brief but famous stint as King of England and his death at the Battle of Hastings, Harold was buried at his collegiate foundation, and reinterred in the apse of the collegiate church built 2nd quarter of the 12th century which largely stands today as a parish church. Cathedral-like though this building is, it was barely more than the front bumper of the limousine which stood beyond it. Waltham spent less than a decade as an Augustinian priory, gaining abbey status in 1184. It was perhaps King Henry II’s favourite Augustinian house, and the work that was done on the church at the end of the 12th and into the 13th century is absolutely staggering, and it is one of the great tragedies of the dissolution that there is absolutely nothing left: not even foundations for the most part.
Waltham Abbey Precinct
Although nearly all of its cloistral buildings were demolished, the outer precinct at Waltham is one of the best understood and excavated in the country, including the Abbey’s grange farm that abutted the north side of its outer precinct. To the north of the church is remains a partly moated enclosure, originally an orchard and used as a cemetery from 1446. Although the Abbey was north of the course of the River Lea, it was diverted upstream to provide the Cornmill stream to irrigate the farm and the monastery itself. There was even a timber-framed dock built off the main course of the Lea to bring in the vast amounts of stone and heavy metals needed for the church rebuilding programme.

In the grounds today, much of the visitor’s experience is vast open land with fragments of wall from a post-dissolution mansion, some built on abbey foundations with abbey masonry. The only monastic survivals, other than the church nave, is one rib-vaulted passageway that was incorporated into the house that was connected to the north-east side of the cloister, and the two arches of the western gateway.
Waltham Abbey church
The church we have today is really the collegiate predecessor of the Augustinian Abbey, constructed fairly late in the Anglo-Norman Romanesque rebuilding frenzy. It is, however, on a cathedral scale, with a three-storey elevation (for other great churches of purely secular canons, see Wimborne Minster, Dorset and Southwell Minster, Nottinghamshire). The date of the building is undocumented, but it displays allegiance with the early 12th-century trend for incised columns, which were famously introduced at Durham Cathedral and caught on at projects up and down the east side of the country. The Bishop of Durham held a large manor at Waltham which may have been a factor, but also the spiral columns (like Harold’s great eastern transept) may have been intended as a reference to the twisted Solomonic columns in St Peter’s, Rome, all part of glorifying the Holy Cross artefact to which the church was dedicated.

The aisle vaults appear to have been removed when there was an aborted attempt to cut out the galleries into one giant super-arch. This was part of a modernisation of the nave starting with the removal of the western towers and new west front in the first decade of the 14th century, perhaps matching the proportions of the disappeared east end.

And that brings us to the east end. With it, it would have been as long as 155 metres: longer than the cathedrals of Durham and even Norwich. Because the community made a late transition from secular to conventual, it was in the unusual position of having a sizeable and consistent great Romanesque church but no cloister. The decision was made to basically stick a whole new church on the end of the old one and append the cloister to the nave of that.
The below interpretation drawing is really the only way to bring home quite how gigantic Waltham Abbey church was. The Romanesque crossing was retained, along with the Romanesque presbytery piers, which somehow transitioned into a wider nave to a SECOND CROSSING TOWER! How did this work in practice? Was the cloistral range built first as the conventual buildings were of utmost necessity? Was the church elevation a consistent essay in mature English Gothic begun in the early 13th century or was it begun earlier, creatively utilising French Gothic elements as typical for late 12th century England? Did it have an ambulatory or a flat east end? Or was an ambulatory added later? These questions will probably never be answered because the scale of its ambition was equalled, relatively, by the completeness of its demolition.


The Waltham Cathedral idea could remained up in the air for at least a year after the community was dissolved, indeed it was mentioned in three other manuscripts after the King’s: but at the beginning of 1542 its fate was sealed. The Crown had leased the Grange Abbey Farm and other demesne lands to Sir Anthony Denny on 12 April 1541. Denny was extremely close to King Henry, to the point he served as Groom of the Stool, which means he was at least literally very familiar with the King’s bowel movements if not his actual fat arse. But even without the title he was pretty far up there: along with Edward Seymour and John Dudley, he was the lowest sort of lickspittle toady who cared little more than his own aggrandisement and the destruction of all he had been told counted as Popery in order to wiggle further up. He was assigned keeper of the site of Waltham Abbey on 9 Jan 1542, which basically means he was made general contractor for overseeing its demolition and profitable disposal, with all lead going to the Crown. And he was just about the worst person Waltham Abbey church could have got to look after it.

The plan of the gigantic novum opus of Henry II’s Augustinian Abbey is so difficult to trace because, at least at the easternmost end, the footings and even the foundations were pretty comprehensively dug out. The value of the Reigate limestone in the Thames clay basin, along with Denny’s zealotry, resulted in one of the most complete demolitions of the dissolution. Clearance and disposal was probably completed when Denny was personally granted the site 28 June 1547: essentially meaning his subcontractors moved out and he could build his mansion there. The Romanesque crossing tower was originally kept at the end of the parish church, but without the east arm to buttress it, it collapsed eastward in 1553. Some of its stone was used to build and fund the new parish west tower in 1556-8 which obscured the early 14th-century W front. The medieval fabric of one of England’s greatest abbeys has remained basically static since then, the restoration by William Burges 1859-77 being both respectful and artful.
Abbey of St John, Colchester
Benedictine monks – founded 1096 – confiscated by attainder after conviction of abbot 1 Dec 1539 – 17 monks swore Act of Supremacy 7 Jul 1534
£523 gross

Colchester Abbey was founded by Eudio Dapifer, steward of King William I and custodian of Colchester Castle. As one of the largest towns in Roman Britain, Colchester, as well as being important strategically also had an important symbolic meaning to the Norman conquerors. Ruins remain of St Botolph’s Priory, arguably the first house of Augustinian Canons in England, but of the Abbey founded in the 1090s, there is almost nothing.
The Abbey is most famous historically for its last days that cumulated in the execution of its last abbot, Thomas Marshall alias Beche, who was elected abbot there in 1533. Colchester was one of very few monasteries (other than the Carthusian Order, who really came a cropper on it) to make any protest against the Act of Supremacy of 3 November 1534, albeit a very mild, underhand one. Abbot Thomas and some of his monks were not present at the oath of fealty to Henry VIII and his new Queen Anne Boleyn in January, although rumours of insurgency were denied and they managed to get away with it by holding the oath again with all seventeen brethren of Colchester Abbey present in July.
![cross-blue2-300x177[1]](https://stainedglassattitudes.com/wp-content/uploads/2020/07/cross-blue2-300x1771-1.jpg)
Interestingly, Abbot Thomas had experienced dissolution of his house before. He was prior of Wallingford Priory (Berkshire) which was suppressed by Cardinal Thomas Wolsey in 1525 to confiscate its lands to fund his colleges in Oxford and Ipswich. Marshall reportedly paid Wolsey 1000 marks (a mark is two thirds of a pound, so the unfortunate value of £666) for the abbacy of St Werburgh, Chester, which he held from 1527 until he was displaced 1529/30 by a previous abbot who wasn’t happy about being forced out by the state. One might think our Thomas Marshall alias Beche was determined not to get fooled again.
In 1538 Colchester Abbey tried to convince Thomas Audley, the Lord Chancellor, to let it become a secular college to escape the inevitable end as greater monasteries surrendered around the kingdom on account of the great charity the house served in Colchester. But a letter sent by a John St Clere on 22 Nov 1538 probably really set him off against the house, when it was reported that Abbot Thomas had said to him over dinner
![cross-red-300x162[1]](https://stainedglassattitudes.com/wp-content/uploads/2020/07/cross-red-300x1621-1.jpg)
“The King shall never have my house, but only against my will and against my heart. For I know by my learning that he cannot take it by right and law; why in my conscience I cannot be content nor he shall never have it with my heart and will.”
St Clere reported he told the abbot this sort of student politics he played with at Oxford (Abbot Thomas had been granted his doctorate of divinity there in 1515) will get him killed. And how right he was.
We know a lot more about the evidence and charges against Abbot Thomas than we do the other two cases in 1539: Abbot Hugh of Reading and Abbot Richard of Glastonbury who were both executed after imprisonment and trials that were almost certainly not taken through proper legal standards even of the time. The prosecution gathered a portfolio of treasonous statements by Abbot Thomas such speaking in support of the Pilgrimage of Grace in the North, against Royal Supremacy and for the authority of the Pope from two mercers of Colchester.
![Colchester-Cross-vertical-poss-front-247x300[1]](https://stainedglassattitudes.com/wp-content/uploads/2020/07/colchester-cross-vertical-poss-front-247x3001-1.jpg)
At an interrogation of the Abbot regarding these statements he denied (in a bit of circuitous way) having spoken against Royal Supremacy, also denying saying that “if all the water in the Thames were gold it would not quench the King’s covetousness”. He also claimed that he would have surrendered his monastery if asked by the King’s commissioners, just that he thought he pension ought to be higher. It makes it all the worse then, that solely for the crime of allegedly using phrases like “wretched tyrants and bloodsuckers” in private conversation regarding what was going on in the north of the kingdom (which, fair play, were probably legit), he was sent from the Tower of London to be tried and hung at Colchester, probably the gallows in nearby Greenstead (not to be confused with Greensted-Juxta-Ongar, on the other side of the county), on 1 Dec 1539.
It’s easy to dismiss all this as “medieval” or “just what the Tudors did” but really, after the Act of Supremacy, the total control invested in the head of state over a part of the kingdom they hadn’t had before led to rampant injustice, judicial murder, exploding into cultural annihilation. The thought a mere decade before that the state would be having monastic prelates put to death for allegedly speaking out of line in private conversation would be unthinkable (remember what a fuss there was about Becket?!). The Act of Supremacy had given the Crown far too much power, which was being exploited by his advisers and confidants: a power bubble that was soon to burst, leading to even more death and destruction. Anyway, on with the archaeology…
Colchester Abbey precinct

The site of Abbot Thomas’ church which he wouldn’t/actually would surrender was sold to John Lucas, member of parliament and town clerk for Colchester in 1548, and although previous leasee Thomas Darcy, mate of future Lord Protector Edward Seymour, can’t have been a careful custodian, some of it might have remained for a while as there is a steeple of sorts in the precinct in the John Speed map of 1610. In 1860 it was bought back by the government for Colchester garrison. The Ministry of Defence have been selling off parts of the site for residential redevelopment, but the west end of the Abbey church nave is still the officers’ club, with their tennis courts over the rest of the church.
Until recently, all that you would say was known of the Abbey of St John was the great 15th-century gatehouse, sections of precinct wall, and St Giles parish church permitted by the abbey to be built on part of their monastic cemetery 1133×71 (now a Masonic Hall). But recent archaeology, and a reappraisal of a 16th-century manuscript illumination allow us to say a bit more than we would a decade ago.

Colchester Abbey church
The MoD owning the site until recently precluded any serious investigation. After the Garrison Officers Club was destroyed in fire in 2011, the west end of the Abbey church was discovered by Colchester Archaeological Trust (report here) in the form of robber trenches (i.e. the foundations have been pulled out, but because the earth is different, you can tell where they were). The site of the terminating wall of the east end was established by ground-penetrating radar and magnetometry. This, excitingly, for the first time gives us a basic ground plan of the long-lost Abbey church and a total length for it of 90 metres. The pier bases are conjectural: only the sleeper walls for the arcade were found, as are the west towers (included off pictorial evidence, see below). The Abbey church was apparently built anew in 1133 following a fire, so we would expect something similar to Romanesque Waltham above (though the nave here would seem to be 50 rather than 30 metres long), with a later modest extension around the 13th century.
However, there is one VERY interesting piece of evidence to consider for the appearance of the abbey church of St John…
This is the illumination at the top of three leaves of manuscript, bound together with a bunch of other historical works, detailing the foundation of Colchester Abbey, with a list of the abbots up to Thomas Marshall in the rings down the margins (with a rather over-optimistic number of empty ones). The dating suggested is the early 16th century (of course Abbot Thomas could have been added after his election in 1533). The context is clear that this is supposed to be a representation of the Abbey church, set out and executed around the same time as the text. But is it a reputable reflection of its appearance before its destruction?
Although I’ve never come across it before, the image is pretty well known (the Hollar engraving for Dugdale’s Monasticon used it to represent the Abbey, which in turn was reproduced in 19th-century prints). It’s easy to be incredulous as to whether it represents anything of the appearance of the actual church, but it should not simply be dismissed out of hand. Actually, it’s a pretty coherent drawing of what we would expect the church to be, especially after the recent archaeology.

What the illustration shows is a church with a low crossing tower with big corner pinnacles and topped by what appears to be a lead-covered timber lantern, and a two-tower west front (I wouldn’t get too fixated on the west front tower being actually meant as round, although the intent of the dark wash with no corners isn’t easy to explain away), terminating in an unaisled “cliff-like” full-height east wall. The detailing of the nave clerestory is slightly different to that of the east arm, with little colonnettes in between the paired windows. What such details mean is impossible to say beyond that the two bits looked different, so I would suggest the nave is early 12th-century Romanesque but refashioned, and the east end, with its east big lancets, is a 13th-century Early English Gothic extension. The nave aisle also has a crenellated parapet with a low-pitched roof, suggesting it was rebuilt in the Perpendicular style in the 15th century. The number of bays indicated by the clerestory as twelve – five plus the west front tower bay for the nave and four plus the unaisled sanctuary with the tower in between – is consistent with the number conjectured for a church of c. 90 metres.
So, all in all, the drawing is very interesting but corroborative more than advisory, probably. But that wasn’t going to stop me from doing this:

Diocese of Oxford
Abbey of St Mary, Osney (Oxford Cathedral 1 Sept 1542 – 20 May 1545)
Augustinian canons – founded 1129 – dissolved 17 Nov 1539 – 20 canons 1518-20
£755 gross / £654 net
Osney (also Oseney, to confuse you) Priory was founded by Lord Robert D’Oyly on a semi-insular site near the foot of Oxford Castle. After it won favour with the Pope over a dispute with the Priory of St Frideswide over the appropriation of the parish church St Mary Magdalene, Oxford, it was raised to abbey rank, and by 1481 the abbot was granted the coveted right to wear a mitre. It was a highly respected house, and its stable and uncontroversial status made it a popular place for ecclesiastical conferences.
It is not all “what if” with Osney. It actually was a Church of England Cathedral for just over two and a half years. Its time was cut short by the same money issues that thwarted the other cathedral plans. Thomas Wolsey had founded Cardinal College in the dissolved Priory of St Frideswide, and after his death it was seized by the Crown, and became for thirteen years King Henry VIII’s College. As a cost-cutting exercise, in 1546 the college was refounded as Christ Church, combining the educational college and diocese in one bag. Christ Church subsequently basically used Osney Abbey as a stoneyard. By the 18th century, basically nothing remained of the buildings.
Osney Abbey precinct
Many people have heard of Osney Abbey because of its brief cathedral role, but its site is rather obscure. Christ Church College, I don’t think it’s uncontroversial to say, did not give a fig about the site, and from what I can tell, hold none of it now. It was mostly pasture by the 19th century when they started selling the land off.
There are two major things make investigating the great abbey of Oxford rather difficult. Firstly, the site of the church and cloister was, incredibly, sold to the Church Commissioners in 1847 to put a City cemetery there: something that destroys and prevents archaeology for obvious reasons. Secondly, the east end of the church had the railway laid over it in 1844. The consequence of this is if you have been on the train from London to Oxford, you’ve briefly been in the presbytery of Osney Abbey church!

All that survives above ground of the Abbey is a doorway and window that seem to have been part of its mill by the Thames, and only because it remained a flour mill through to the early twentieth century. Hardly inspiring remains of one of the mitred abbeys.
Osney Abbey (Oxford Cathedral 1 Sept 1541 – 20 May 1545) church
![EX7UJG1XsAE4hkP[1]](https://stainedglassattitudes.com/wp-content/uploads/2020/07/ex7ujg1xsae4hkp1.jpg)

Because of its unusual circumstance of being briefly a cathedral (and also never leased by the Crown to a private individual), we have an equally unusual pictorial record of the now disappeared remains of this great Abbey church, which was just over 100 metres long. Enough survived when Hollar was collecting images for Dugdale to capture its extraordinary west tower, which looks a similar size to Ely Cathedral’s (66 metres, with the masonry lantern), rivalling some cathedral crossings. It originally held the bell now known as Great Tom which, as recast in 1680, hangs in purpose-built Tom Tower in Christ Church College: now 6.3 tonnes but originally reputedly 7.7. When Great Tom was taken to Christ Church almost certainly marks the controlled demolition of the tower and the clearance of most of the remains of the abbey by the College, to help pay for damage during the Civil War. In Hollar’s engraving, the arch from the nave to the tower appears to have been blocked with rubble to prevent it collapsing, and the arcades vanished, with only the south wall of the nave surviving.

Another, rather unusual image of Osney Abbey/Cathedral church is from the scheme of stained glass commissioned for Christ Church Cathedral, Oxford by Archbishop Laud when he was chancellor of Oxford University in the 1630s. It shows Bishop Robert King in front of his old abbey and cathedral (see below for full image). Because the glass is literally painted with enamels, it is actually rather detailed and seems accurate in a number of regards. It indicates that in the 1630s one nave arcade was still standing, and that it was Gothic rather than Romanesque. Otherwise, details like the high roof scar (slightly obscured by an iron saddle-bar) and the east range gable are consistent with the Hollar engraving, but also divergent enough to show they are not from the same pictorial source.
With all those graves dug in Osney Abbey mean we will probably never find out much more about the great church beyond these images. But who knows!
Abbey of St Mary, Thame
Cistercian monks – founded 1140 – surrendered Nov 1539 – 13 monks at dissolution
£296 gross / £256 net
![EX_KP2CXQAAYK89[1]](https://stainedglassattitudes.com/wp-content/uploads/2020/07/ex_kp2cxqaayk891.jpg)
Because Oseney briefly operated as a cathedral, there is absolutely no doubt that Thame was ever considered as the site of one. Nevertheless its fate is intertwined: the bishoprick documents of 1539-40 repeatedly refer to “Os[e]ney [cum/and] Thame” as if to highlight their dual role going forward, no doubt due to the role of the abbot of Thame in the new foundation.
After Thame’s dissolution, the monastery’s land itself was granted to the Abbot of Osney, Robert King, who had, since 1529 also been the last abbot of Thame.

Yes, he had been abbot of two abbeys at once, Cistercian monks and Augustinian canons: but then anything was fair game in the new Church of England. King was obviously only appointed at Osney in 1537 as a patsy for its dissolution and subsequent refounding as a cathedral. It is then not surprising that principal survival at his abbey at Thame is the abbot’s lodgings, where Abbot Robert himself commissioned an exceptional all’antica interior in the early 1530s, conveying in artistic patronage quite how close he was to the top bods of the Tudor court.
While the Cistercian houses of the Northern Province loom largest in the “far from the concourse of men” histories of the order, they also had many successful houses in the Archdiocese of Canterbury. Thame’s income in the Valor was just above that of the famous English-Heritage Cistercian ruins at Byland and a fair bit above those at Roche (also founded in 1140s). The problem with Thame is, despite its unique survivals and archaeological potential, it is almost entirely inaccessible to the general public and curious persons. It was until 1984 owned by the heirs of the Raleigh Bicycle Company, when it was sold to Japanese investors for refurbishment into a hotel and venue, which was thwarted by the bubble bursting on Japan’s overconfident speculation on credit assets in late 1991. For years it was used mainly for location filming and was marginally accessible according to local accounts (even if they, sadly, didn’t take a great deal of photographs of the site). In 2002 the estate sold for six million and is currently the private house of the director of a Reading-based capital management company.
Thame Abbey Precinct
It is a great shame Thame Park is quite so exclusive, to the point where even photos are extremely difficult to find, because it would seem one of the best-preserved glimpses into the personal study of an abbot on the eve – and surely uniquely – even after the dissolution of his house. The abbots’ quarters extend eastward out of the back of the 18th-century mansion. They were begun around 1500 as a block fronted by battlemented bay windows, later extended further east into a hall ending with a fireplace. On the south side of the hall’s entrance portal a three-storey pele tower was added by Abbot Robert King.
On the first floor of the pele tower is the exceptional abbot’s (not abbots’, for only one abbot ever used it) parlour which features one of the most complete decorative schemes of an early 16th-century interior to survive, with a plastered ceiling with moulded cross beams, a decorative frieze of mermaids and arabesques, panels featuring carved portrait heads and emblems below, and the whole walls clad with linenfold, including an internal porch to the hall and stairwell. With a fireplace, personal garderobe and east-facing oriel window, it is surprisingly palatial for a Cistercian abbot, who we expect to be austere in the manner of their 12th-century forebears. However, it is naive to think that prelates like Robert King would not have regularly commissioned work to prove their position in society that competed with secular interiors such as Hampton Court (which of course, was begun by Cardinal Thomas Wolsey, Archbishop of York, which only proves my point, I guess).
![Christ-Church-Oxford-68[1]](https://stainedglassattitudes.com/wp-content/uploads/2020/07/christ-church-oxford-681-e1594248038719.jpg?w=610)
As well as it being Robert King’s personal study, he no doubt would have received guests here, and the fashionable and learned decoration would represent the reach and contemporary power of his house. One can imagine it is where he convinced agents of the Crown to recommend him for abbot and ultimately bishop of Osney. He most likely continued using this space in his role as the Bishop of Osney until the see was abolished 20 May 1545, and he was reappointed as the Bishop of Oxford in former Priory Church of St Frideswide in 1546. The dastardly Edward Seymour, as Lord Protector of Edward VI, gave Thame Park to John, 1st Baron Williams of Thame the following year, beginning its long secular ownership. King himself endured as bishop through the Edwardian regime and into Mary’s reign, dying 4 Dec 1557. He was interred under a London-type Purbeck marble tomb in Christ Church Cathedral, Oxford.
I was rather taken with my discovery of this interior, and it deserves a lot more thought than I am willing to do so here. However one thing that would hinder a close study of its context and meaning (except that it’s incredibly difficult to ever actually visit and I’ve not even found a single colour photo of it) is that unfortunately, nearly every single face – particularly the portrait heads but often even the cherubs – has been mutilated. This is probably due to the resident of Thame Park Thomas, 2nd Viscount Wenman (1596-1665), who as a staunch parliamentarian certainly had puritan leanings, and probably had a bit of a benny against it.
![large_gbad2179[1]](https://stainedglassattitudes.com/wp-content/uploads/2020/07/large_gbad21791.jpg)
The other thing from the abbey that survived at Thame Park (well, other than some bits of wall in the north wing parallel with the abbot’s lodgings that are probably the kitchen blocks behind the cloistral refectory) is the equally mysterious early 14th-century capella extra portas. Usually these chapels survived as parish churches, such from the Cistercian abbeys of Kirkstead (Lincolnshire) and Tilty (Essex), but here uniquely as an entirely private chapel. This watercolour shows it in the condition before the 1836 restoration, but finding images of it after, i.e., today, is absurdly difficult. Pevsner says the chancel is vaulted with a sexpartite rib-vault, although I suspect it is plaster-work of 1836. Who knows: even the National Monuments Record didn’t photograph inside. Below is all I’ve been able to find. The two colour pictures are from when it was recently restored.
Thame Abbey church
The Abbey church was excavated c.1840 by a William Twopenny. It seems no plans survive (if they were ever made), and that the first published account appeared in the Building News some fifty years later (30 March 1888) which describe the proportions of the church as “a little more than 230ft. in length by 70ft. in breadth [with] The Lady Chapel, at the east end of the church, extended further 45ft. eastward.” Most notably, he found the “undestroyed bases of fourteen pillars”. If these were of equal size (that is, not including the crossing piers or west responds), the nave was was eight bays long. These certainly remain buried in the current estate.
What’s particularly interesting as an addendum to this obscured site is that about 1507, a monk of Thame wrote to the Pope mentioning that his abbey was of almost equal dimensions with the Cistercian house at Furness. The total length of 275 feet (83.82 m) recorded by Twopenny isn’t too far off Furness Abbey church’s length of 93 metres, but even more so when you consider Furness’s new west tower of c.1500 may not have been built or remained unknown at Thame at the time of writing. The 12th century church at Furness without the tower would have been 80.8 metres, very much the same size. So that’s nice.
Diocese of North Yorkshire
The King’s preferred seat of a new Northern bishop was the famous Cistercian ruin of Fountains Abbey (detailed in the previous episode of MonasteryQuest™). Now while Fountains Cathedral might sound absurd, it is actually less than ten minutes drive away from the first cathedral designated since Henry VIII’s time: the former collegiate church of Ripon Minster, raised in 1836. However, Henry seems to have relented on his original great wheeze, as a subsequent document bound with Cleop. E4 with the King’s manuscript annotations actually mentions Ripon’s southern sister Southwell Minster “in loco Fontayne”. Southwell Minster was unique in being a secular college dissolved in 1540 in readiness to be made a full cathedral, continuing in collegiate form from 1585 to 1841, and finally became the seat of its own bishop in 1884.
Priory of St Mary, Guisborough
Augustinian canons – founded 1119 – surrendered 24 Dec 1539 – 25 canons at dissolution
£707 gross / £623 net
Guisborough was founded by Robert de Brus, 1st Lord of Annadale, ancestor of the 7th lord, King Robert the Bruce of Scotland. His generous endowments to the new foundation, advised by Archbishop Thurstan, suggest this was intended as the prime Augustinian house in Yorkshire. It was the fourth richest house there in the Valor, behind York, Fountains and Selby. Nevertheless it remained a priory, in subjugation to its lay patrons.
In 1289 a disastrous fire caused by a plumber placing his iron pan of burning charcoal on the room timbers, swept through the church and monastery. The medieval description of the outcome is typically superlative and absolute, the actual extent of the damage unclear. Nevertheless after this, a new extension was built on the east end of the church, with the all important fire-proof stone high-vaulting it evidently did not have before.
Apart from a prior dissenting against the act of Supremacy, who was quickly replaced in office and later executed, the dissolution was typically swift. Mostly Guisborough was being considered as being refounded as a college, but one short note (Henry 8 Letters & Papers Vol 14 No. 2 no. 430) explicitly puts “Gysborow cum Beverley” under “Bishoprics newly to be erected by the King” (in the same document, Beverley was specified to be kept as a college, so presumably was not intended to be demolished for scrap). Guisborough Priory’s site was leased to Thomas Legh, one of the most notorious dissolution commissars, for clearance from 21 Nov 1541.
Guisborough Priory precinct


The demolition job was pretty thorough, if not totally complete at Guisborough. The gatehouse, part of the precinct wall, and the west range of the cloister survive just next to the parish church of St Nicholas, which retains a ceremonial tomb chest to King Robert the Bruce commissioned under Prior Cockerell (elected 1519) brought from the Priory church. The rest was so heavily landscaped as the gardens of Chaloner’s mansion archaeology has been difficult, but modern geophysics could reveal more in the future, though much of it has been thoroughly ploughed and covered in trees since the gardens went.

Guisborough Priory church

For most of the priory church, we only know the basic plan: 119 metres long, two-tower west front, aisled transepts. But the site is dominated by the survival of almost the entirety of the east wall of the presbytery, constructed in the 1290s after the great fire of 1289. It is such an odd fragment, not least that it gives you a full cross-section of the anatomy of a three-storey, fully vaulted church, including the spiral stairs and wall-passages built in for maintenance purposes. There is more than enough left of the great east window to accurately reconstruct it (except, of course, for the suspended shapes in the centre of the oculus and the top of the middle light), and such was published by Edmund Sharpe in 1849.

Enough survives of the springing of the elevation, and along with comparison with similar monuments (e.g. the new chancel of the collegiate church of Howden) to fully reconstruct this part of the church. It is of a brief phenomenon known as the “Yorkshire Rayonnant”, where, exemplified by the new nave of York Minster, there was an unusual concentration in the county on the French ideals of accentuating verticality in church architecture, rather than typically English horizontalising decoration. Like York Cathedral nave, you can see that the middle storey of Guisborough Priory church is amalgamated with the clerestory above.
Diocese of Cornwall
![EcR2zhLWoAAXJo3[1]](https://stainedglassattitudes.com/wp-content/uploads/2020/07/ecr2zhlwoaaxjo31.jpg)
Cornwall was in desperate need of its own diocese, rather than being administered all the way from Exeter. Problem is, it really did not have many monasteries at all. Henry’s plan simply says “Cornwal: Lanceston, Bedmynne, with another” as if he was really struggling where this cathedral would go: he certainly didn’t want to spend money building one! After some wrangling about accommodating a Cornish diocese, including thinking about a priory north of Plymouth, it would seem Cromwell threw it in the trash with Fountains and Leicester. Eventually of course, Cornwall eventually got its cathedral when Truro, the only Anglican cathedral built ex-novo in Victorian England, was begun on the site of the medieval parish church in 1880.
Priory of Holy Trinity, St Mary and St Stephen, Launceston
![2013_0925_132218-1024x768[1]](https://stainedglassattitudes.com/wp-content/uploads/2020/07/2013_0925_132218-1024x7681-1.jpg)
Augustinian canons – founded 1127 – surrendered 24 Feb 1539 – 12 canons signed Act of Supremacy
£392 gross / £354 net
Launceston was the largest town in medieval Cornwall, and Launceston its wealthiest medieval house. Named Lannstevan after the minster church of St Stephen to the north of the modern centre, the priory was successor of the secular canons at the there. Founded 1127 near the castle by the Bishop of Exeter, c.1155 it moved to its current site by the church of St Thomas, chapel of ease to St Stephen.
Launceston Priory precinct
The priory was rediscovered during the construction of the LSWR North Cornwall line in the early 1880s, and extensively excavated in 1886 and 1892. These revealed the most complete claustral plan known in Cornwall, however only the central part of the church is accessible, the rest being covered over by the railway (now a heritage line), private houses, and to the east, a former gasworks (still held by National Grid plc).
The priory was rediscovered during the construction of the LSWR North Cornwall line in the early 1880s, and extensively excavated in 1886 and 1892. These revealed the most complete claustral plan known in Cornwall, however only the central part of the church is accessible, the rest being covered over by the railway (now a heritage line), private houses, and to the east, a former gasworks (still held by Transco). The earthwork to the north is probably the spoil heap from these excavations.

Launceston Priory church
At 89 metres, the church was quite long – a little longer than St David’s Cathedral in Wales for instance – but perhaps not surprising since it was within the top 20% of monasteries by gross income in the Valor. However, unlike somewhere like Elstow Abbey’s rather boring church, it was decidedly higher-quality architecture, with a presbytery that would have made for a very fine small cathedral choir.

Like a lot of Augustinian churches, the nave only had one aisle (the cloister forbidding easily adding another) but the presbytery was clearly a much later and ambitious addition from the architectural fragments discovered. Unlike the nave, it certainly had stone vaulting, if not a high vault. The tracery fragments also suggest a wide variety of window designs on the example of Exeter Cathedral and a ornate carved stone reredos. Think something along the lines of Bishop Grandisson’s collegiate church at Ottery St Mary (Devon) and you’re not far off.
Priory of St Petroc, Bodmin
Augustinian canons – founded 1124 – surrendered in 1539 – 8 canons at dissolution
£289 gross / £270 net
![14-2[1]](https://stainedglassattitudes.com/wp-content/uploads/2020/07/14-21.jpg)
Bodmin was the second richest house in Cornwall, but perhaps had more kudos as it claimed to be founded by St Petroc in the 6th century, and one of the earliest monasteries to follow the Benedictine rule, however the community was refounded as Austin in 1124. It now lies under Priory House (formerly owned by the local authority and used as a social services building, at time of writing being marketed as a residential development). Excavations there have never been properly published to my as far as I can tell which is annoying. It had a vaulted north aisle with big Romanesque columns, and a west tower added in the 15th century, when the presbytery may also have been rebuillt. The parish church of St Petroc on the other side of the road was rebuilt 1469-91.
There is one exceptional survival from the monastery that also is material witness to a bizarre historical episode recorded in the annals of the house. In 1176, a disgruntled former canon of the Priory stole the relics of 6th-century missionary St Petroc, taking them over the Channel to the Benedictine Abbey of St Méen in Brittany where some novices discovered them by accident in his luggage and he was forced to bequeath them to the monks. The Bodmin canons were furious when they heard about this, and when they opened up the Petroc reliquary to find the bones had indeed gone, they enlisted the help of the King and Archbishop to get them back. The main source for this caper is by Robert of Tawton, canon of Bodmin. According to it, the Keeper of the King’s Seal, Walter of Coutances, who had just been commanded by Henry II to return the relics, happened across a “certain mutilated man” (often translated as “pedlar” or similar, but that’s modern ableist prejudice as much as anything) selling an ivory casket, which he couldn’t pass up. When the monks of St Méen placed the relics into this casket, it was found to be the perfect size, proving their authenticity. The casket was then brought back to Winchester for the relics to be exhibited, and then back to Bodmin, where they were placed in a silver-gilt reliquary.
![Bodmin,_St._Petrocs_Church-_St._Petrocs_ivory_and_gold_casket_(1170)_(geograph_5100462)[1]](https://stainedglassattitudes.com/wp-content/uploads/2020/07/bodmin_st._petrocs_church-_st._petrocs_ivory_and_gold_casket_1170_geograph_51004621.jpg)
If this 12th-century Siculo-Arabic ivory casket that has been in the parish church since at least the 18th century isn’t that precise casket mentioned so prominently in the narrative, well, that sort of coincidence would be an even bigger miracle than it surviving. In 1994 the casket itself was stolen and later ended up in a field in Yorkshire. It just never ends!
Priory of St Germanus, St Germans
Augustinian canons – founded 1161×84 – surrendered 1539 – 7 canons at dissolution
£243 gross / £227 net
![27288355836_cab5ec6a12_b[1]](https://stainedglassattitudes.com/wp-content/uploads/2020/07/27288355836_cab5ec6a12_b1-e1593962688820.jpg)
St Germans was actually the site of an early Cornish cathedral, from about 931 to 1043 until it was transferred to Crediton and then Exeter in 1050. The Priory church still largely exists as a parish church: its west front of the later 12th century has an almost early Norman bluntness, except for the lavishly chevroned west portal. Inside it is not terribly cathedral-like (although it was much disfigured when the east end collapsed in 1592 and lost its north aisle around 1800), which is not really an issue since the documents were clearly considering appropriating its endowments for a cathedral either at Bodmin or Launceston. John Champnon was leased the site in 1540, converting the monastery into a house. The refectory now forms the shell of Port Eliot House, although the south front is covered in ivy! It’s mostly all Soane 1802-6 though, who was called in to repair the house and perhaps link to the the church shortly after the latter’s north aisle collapsed. Anyway, here is best photo I can find plus his office’s own elevation drawing.


Priory of SS. Peter and Paul, Plympton (Devon)
Augustinian canons – founded 1121 – surrendered Mar 1539 – 20 canons at dissolution
£931 / £898 net
Plympton was the site of a minster church which continued as secular college until it was refounded as Austin canons by the Bishop of Exeter, and confirmed by King Henry I, a big fan of the order. It became easily the richest monastery in Devon, and at the time of the Valor, the fourth-richest Austin house and the 33rd richest house overall, just behind Furness. However, it is almost totally forgotten about because there is almost nothing left of it. It has recently had the rare distinction of someone writing a whole book about its history, which is probably a great read if you like books with one picture in them (no shade, I’m sure it’s great, I just don’t have… €125.00 / $155.00 for the privilege at the mo)
Plympton, of course, is not in Cornwall. It is now a suburb of Plymouth, which is of course in Devon. It is only mentioned once as a possible candidate for the king’s “another” (the document is a pretty deep cut) in conjunction with the three Cornwall sites, of which it is easily worth more than all three combined. This suggests that at least someone in the Tudor court thought it was a candidate as a cathedral to take the load off west of Exeter.
But was there a church at Plympton of suitably cathedral stature? Well, not sure on that. The site is unusual because the grantee never built a major mansion there, leading it to be largely unincorporated land, built over by many properties. The site of the nave is largely under a concreted-over shared parking area.
![plympton[1]](https://stainedglassattitudes.com/wp-content/uploads/2020/07/plympton1.jpg)
I’ve a total ‘mare with this one: as is often the case between for sites excavated between the age of excavations being done by men from the ministry or gentleman antiquarians and the current age of commercial firms. The former published in learned journals I can access online, the latter put out PDFs on their own websites. The 1970s and 80s tend to put a few pages of typewritten stuff shoved in a county archive somewhere, possibly now only on microfilm. So, in this plaguebourne time, I am excused to be limited by only some prose descriptions of the finds in 1968-70.
So, I’ve made this from the horrible postage-stamp conjectural from that above interpretation board in front of the main standing remains of the north-west corner of the west front of the church. The nave, of which parts survive in the north wall of the parking lot, was around 30 metres, the whole church then perhaps about 50 metres, which is the same length as the rather large (but not exceptionally so) parish church just to the north. But who knows.
Diocese of Leicestershire and Rutland
Abbey of St Mary de Pratis, Leicester
Augustinian canons – founded 1143 – surrendered 1538 – 20 canons at dissolution
£1056 gross / £946 net
The Abbey of St Mary of the Fields (a common epithet to other houses, e.g. De la pré in Northampton) was a late addition to Leicester. The largest church in Leicester was looking to be the College of St Mary de Castro which had been founded and endowed by the first Earl of Leicester in 1107. However, his son realised that secular colleges were not the way to go at the moment for matters pertaining either to power or piety, and transferred all the endowments to a new Augustinian foundation outside of the City. The college at St Mary de Castro was made subordinate to the Abbey and continued alongside the parish church until, as most non-educational colleges, the end came in 1547/8.
Leicester Abbey had an episode towards the end of its innings where it was stuck with a spectacularly shite abbot, Richard Pescall, who failed a visitation so badly the Bishop of Lincoln forced him to resign.
“The abbot, Pescall, was extremely remiss in his attendance at the divine offices in the conventual church, and when he did enter the church he was often accompanied by his fool, who disturbed the services by his buffoonery.”
I just wanted to quote that from the Victoria County History to be honest, for the image of a crap abbot waltzing into Sext half-pissed with his insufferable prat mate making “jests and snatches of song” (the actual description in the Lincoln Cathedral visitation report under Bishop Longland, probably made in 1533, just before Abbot Pescall resigned) which I found rather amusing. Abbot Pescall was still in office when Archbishop Thomas Wolsey died in hostel at the monastery en route from his Cathedral at York (which he had barely visited since his appointment to the see in 1514) to a summons for treason in London, and was interred somewhere in the abbey church in late 1530. After surrender, the site of the Abbey was leased in 1539 to local commissar Francis Cave. This rather early date means that by the time King Henry wrote his list of cathedrals, Leicester Abbey was almost certainly already being demolished, much to the chagrin of the last abbot, John Bourchier, who was almost certainly going to be next bishop if it had come off. As mentioned above, a note by Cromwell (no. 427 here) mentions Leicester Abbey as “already suppressed” and thus presumably out of the picture for new dioceses. It is mentioned in one further document (Hen 8 Letters & Papers Vol. 14 pt. 2 No. 430) as a “college”, confused with either St Mary de Castro or Our Lady of the Newarke.
Leicester Abbey precinct
![leicester-abbey_5[1]](https://stainedglassattitudes.com/wp-content/uploads/2020/07/leicester-abbey_51.jpg)
It was never great news for buildings when either someone from the Privy Council or an ex-suppression commissar got leased a monastery. In this case Cave was the latter, and absolutely no buildings remain of Leicester Abbey with the exception of parts of the precinct wall. The only actual ruins are of Cavendish House, which was probably built on the site of the main gatehouse, burnt out in the Civil War.
The site was laid out as a public park in 1878-82 after being granted to the City (it was essentially pasture by this point), and the plan of the church and claustral ranges were laid out on the ground in the 1930s in a heavy masonry imitating the wall footings, even though actual survivals of the walls were only partial.
The Abbey is almost forgotten (other than the Romance that Wolsey was certainly buried here somewhere) and it doesn’t help architectural history that Pevsner is so dubious about the laid-out plan he refuses to discuss it (or at least so did E. Williamson in the 1984 revision). However, plans of W.K. Bedingfield’s excavation c.1930 and other digs from the 1920s when the former Cavendish House site was being cleared to extend the public park onto shows that it is largely reliable, and also very interesting. As well as the core claustral ranges and infirmary, the outer court buildings of the guest halls and the service ranges (brewhouse, bakehouse, etc) were also revealed. The lower part of the public park was probably the home farm (fishponds and so forth).


Leicester Abbey church
So, to the church, which probably would have had a good chance of being Leicester Cathedral if it hadn’t been already demolished before the King had a brainwave. But unlike his great ideas for a Buckingshire cathedral with some random monasteries near Bedford, this was a significant church: some 103 metres long. Only the walls and arcade foundations are known, so the pier bases, including the crossing, are conjectural. That the flanking chapels (including that on the north which now has a surrogate cenotaph to Wolsey) were divided from the choir by walls rather than arcades is also entirely unproven. The really distinctive thing about Leicester Abbey church is how it had had a big single west front tower – very much in a parish church manner like Grantham – rather than a typical Norman two-tower jobby. Local fine artist John Finnie was commissioned by Leicester Civic Council in 2005 to do a reconstruction of it. And I think his Alan Sorrell-esque painting is quite wonderful (as used above but also here and on interpretation boards on site). Here it is plopped onto Google Earth which I was rather pleased with.

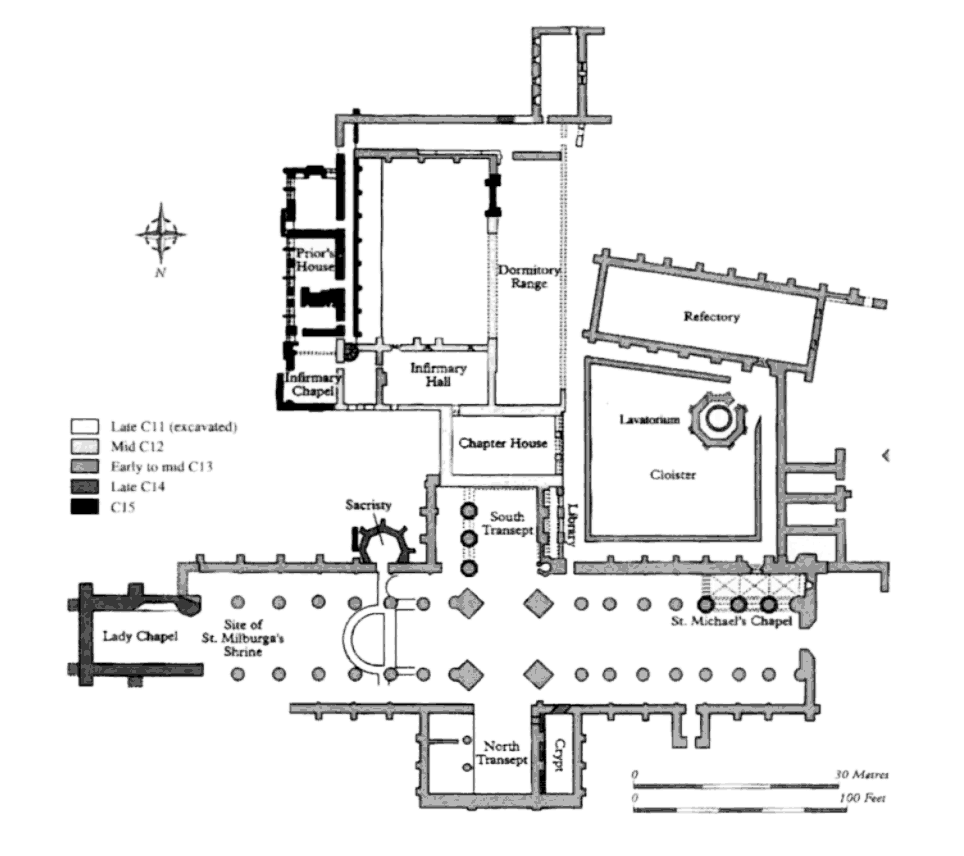
Diocese of Shropshire
Abbey of SS Peter and Paul, Shrewsbury
Benedictine monks – founded 1083 – surrendered 24 Jan 1540 – 18 monks at dissolution
£559 / £482 net

Around 1070, Bishop Wulfstan of Worcester visited Shrewsbury, so William of Malmesbury tells us, and prophesied a little wooden church by the gate would become the greatest of all. A Salop-born son of a Norman priest (I guess it that was still allowed then), was being schooled in grammar there when Roger Montgomery, 1st Earl of Shrewsbury endowed it as an abbey by laying his gloves on the altar of the church and granting it the whole suburb outside of the east gate. That boy, taken by the ceremony and the following religious life, grew up to be the historian Orderic Vitalis of the Abbey of Saint-Evroul, Normandy.
After Shrewsbury’s initial splendid endowment as, unusually, an entirely independent abbey, it only lost rather than gained revenues and finished at the dissolution rather middle-rank rather than anywhere near the top. The dissolved Abbey church held in the Crown was potentially an even stronger candidate for a cathedral than Dunstable, mentioned in all but one of the surviving manuscripts subsequent to the King’s. The abbot was to be John Bourchier, the unlucky abbot of Leicester who had missed out on his Abbey church being made the site of a new diocese because the new owner pulled it down too promptly. After Shrewsbury didn’t come off either, from 1554 John spent four years as a rector at Church Langton (Leicestershire), and Mary I’s untimely death meant his job as Bishop of Gloucester he almost had in the can slipped by the wayside. His dislike of the Elizabethan Settlement meant he sold the rights to his £200 pension and buggered off over the Channel. Maybe he wasn’t that unlucky after all. (This excursus brought to you by Cocks, “The Last Abbot of Leicester”, LAHST 58, 1982-3)
Shrewsbury Abbey precinct
The site was not granted in whole after its dissolution, but instead rented out piecemeal after the nave was permitted to continue as a parish church. Therefore, quite a lot of bits and bobs remains for quite a while. This early 19th-century plan also shows the elaborate irrigation systems that were necessary to run a successful monastery.

Until, that is, Thomas Telford’s Holyhead road reached Salisbury, and smashed straight through the centre of the precinct in 1836. There are a few buildings left towards the west of the precinct (marked A on the above plan as the infirmary, but more likely that they were the almonry or hospitum, positioned as they are towards the city’s citizens) and also the pulpit formerly built into the refectory’s south wall for scripture readings while the brethren took meals, now standing in a little fenced-off area in the adjacent car park. It may be perfectly in-situ: if the above cloistral plan has been contrived around it, I must say it’s surprising how well it fits: I didn’t consider it as a reference point when I was making the below overlay, and it turns out it’s exactly where it ought to be.

Shrewsbury Abbey church

![P19812[1]](https://stainedglassattitudes.com/wp-content/uploads/2020/07/p198121-e1594403110359.jpg)
The parish were granted the whole nave up to the crossing, which was then subsequently dismantled. The original nave clerestory was taken down in the late 17th century (the differently proportioned 14th-century clerestory against the west tower had to be maintained, hence the odd higher roofline with timber-framed gable), and the whole church was evidently in a parlous state before at least it was tied up a bit when anyone travelling to London from Holyhead was going to see it.
The church as you experience it now is an unusual attempt at reviving the vanished parts of the building by J.L Pearson in 1886-7, with a matching pair of eastern crossing piers bring back the lantern, a vaulted east end. The transepts only extend about a third what they would have originally: indeed the plan was to rebuild it on the original scale.
The nave elevation is sullied by the gallery still serving as a glazed triforium with Victorian subdivisions and tracery, obviated by the reconstruction of the lost clerestory. The gallery piers are almost as stout as those that carry the arcades, and the original aesthetic is so plain you wonder if the galleries were never subdivided and simply massive yawning openings.

John Bourchier, quondam abbas of Leicester, never saw Shrewsbury, but if he had become Bishop there in the 1540s, there’s one thing at the Abbey church that would have reminded him of his old Abbey church. The west end has a centralised tower, added in the 1380s and with a memorably complex early Perpendicular window. It’s not as lofty as Osney’s either, and also probably owes more to medieval parochial ambition than much to do with the monastery.
Priory of St Milburga, Wenlock
Cluniac monks – founded 1079 – dissolved 26 Jan 1540
£448 gross / £402 net
The first thing to say about Wenlock is that it is only mentioned in the cathedral proposals in tandem with another site: Shrewsbury or Chester. It was likely then only considered as a supplier of endowments, and Cathedral church status was never on the cards. It was probably first brought up with Shrewsbury, and as it wasn’t disposed of until 1540, perhaps was still floating round as a property the Crown didn’t know what to do with.
However, can’t resist a quick look at what are some of the most interesting ruins outside of Yorkshire. The Cluniacs are more associated with fancy, modern, ex-novo foundations, but Wenlock was the site of 7th-century monastery and minster church. The discovery of the body of the first abbess, Milburg, meant the Cluniac Priory had a strong connection to the British past as well as its tethering to the priory of La Charité-sur-Loire.
Wenlock Priory precinct

The site, as for some reason is common in Shropshire (see also Buildwas and Lilleshall), is split between the care of English Heritage and private property. The church, cloister and east range are publically accessible, but the abbot’s lodging, the infirmary, reredorter and site of the dormitory block are a residence called Wenlock Abbey. In 1983 it was bought by actress Gabrielle Drake (sister of Nick) and artist Louis de Wet (d. 8 Sept 2018), who have spent a considerable amount restoring it (and there’s a great deal more photography available than Thame: the architects’ page and a trailer for 2011 documentary here).

The facade of what is now called Wenlock Abbey to distinguish it from the Priory ruins is quite an extraordinary thing: almost modernistically grid-like, that belies that it is actually both part of the infirmary and the prior’s lodgings directly adjacent.
The infirmary hall, extending west, is of the 12th century, but the chapel (that allows the infirm brothers to fulfill the divine office without needing to go into the main church) was rebuilt in the 15th century, preserving its altar niche and permitted fireplace. The planning of the whole block is quite remarkable in itself, allowing the infirmary and the prior’s lodgings to share a kitchen, thus making it easier to cater for guests in his hall. The long windowed passages on each story on the inside form long corridors which allow quick access to the communal reredorter which is very handy indeed.
Wenlock Priory church
It is strange that, despite being cared for by English Heritage, the church at Wenlock is almost ignored in the literature on medieval English architecture, despite the elevations of the south transept and south nave aisle surviving almost to full height. Usually it’s in the books for its chapter house, which ticks the box for “the early Cluniacs were fancy“. A grand but ultimately typical 13th-century Early English church doesn’t really fit any similar narrative, even though it is completely on a cathedral scale, with high vaulting throughout. The extremely tall triforium is comparable to that of Southwark Priory (now Cathedral), of a similar 2nd-quarter 13th-century date, but otherwise there is nothing quite like it. Reminds you that when often we spend a lot of time regretting how much was lost, we often don’t value enough that what we have.
Diocese of Nottinghamshire and Derbyshire
The final batch. Again, this is possibly just King Henry spitballing, since these are only mentioned in his original MS in the British Library, with none of them ever mentioned again in subsequent drafts of the Tudor dioceses plan: the collegiate church of Southwell favoured instead (and indeed, actually temporarily dissolved in 1540 in readiness for the for the plan). Regardless, they are interesting monasteries to consider, all in most probability (unlike his highness’s weird “Buckinghamshire” proposals) worthy of cathedral status from an architectural point of view. However none were in Derbyshire.
Abbey of St James, Welbeck
Premonstratensian canons – founded 1153 – dissolved 20 Jun 1538 – 18 canons at dissolution
£297 gross / £247 net

Well okay, this one isn’t very interesting, if I’m honest, at least at the moment. The abbey was recognised as the chief house of the Premonstratensian order in England, despite not having a particularly high income, instead based on its amount of daughter houses. The later secular estate became so important in the enclosure of land in Early Modern Nottinghamshire that the mansion complex was massively rebuilt in just about every subsequent century so that the only medieval survivals are seven bays of undercroft that belonged to the south-east corner of the cloistral range, with one round-arched Early Gothic door between the 4th and 5th bays. Considering I don’t even have a proper plan of Welbeck Abbey as it is today, I advise you to wait for the new Pevsner for Nottinghamshire to come out later this year to see if it’s any better than the old one. But would it have made a good cathedral? Sorry mate, no idea. We’ve seen that Henry’s judgement isn’t great when it comes to churches before.
Priory of St Cuthbert and St Mary, Worksop

Augustinian canons – founded c.1103×30 – surrendered 15 Nov 1538 – 16 canons at dissolution
£302 gross / £239 net
Worksop Priory was a fairly ordinary Augustinian house that built a respectable endowment portfolio from the gentry through the 12th century. The remarkable thing about it is how much of the church remains. Francis Talbot, 5th Earl of Shrewsbury was granted the property of the priory and the manor of Worksop in return for him providing a right-hand glove for the sovereign at the coronation, continued by 21st Earl at the Coronation of Elizabeth II. Talbot’s conservative religious leanings (he was a supporter of Mary I) may have helped the parish retain the nave as their parish church, but then there was no other church in the market town so it probably would have happened anyway.
Worksop Priory precinct
The gatehouse is the principal survival of the precinct, the cloistral ranges being limited to simply a bit of the outer wall of the west range still extending north from the Priory church. It has an exceptional – perhaps unique – little porch to a chapel inside, with figure sculpture of the Annunciation, and the Adoration of the Magi, dating to the 1350s.
The plan of the cloister can be traced, as can the east arm, and while there’s probably a lot more archaeology to find, a lot of Worksop’s precinct will have been lost to its later industry: the town moved a fair way west and the Priory church is a bit out on a limb now, joined to the modern centre by an extension of Newcastle Road made across farmland in the early 20th century. Increasingly after the dissolution the site was referred to as Radford to distinguish it from the migrating centre (although occasionally that name was used in the priory’s time). This ground plan is partly conjectural, but the footings east wall and apse had been located (also, it was made well before the transepts and crossing were rebuilt in the 20th century).

Worksop Priory church

N-S crossing arches rebuilt by H. Brakspear 1922-35. E arch, sanctuary and hanging corona by L. King 1966-74. The glazed rose above the W arch is part of the 19thc E wall.
Although the surviving structure is principally the Priory church nave, also left standing was the extended 13th-century eastern chapel of the south transept (called “St Mary’s Chapel” by the 19th century). One wonders if Lord Talbot left it as a recusant chapel of sorts while the crossing and transepts were pulled down, but nevertheless it was a roofless ruin by the 18th century. It was restored and the transepts rebuilt by Harold Brakspear 1922-35. The crossing lantern, aluminium spike spire and ambulatory-style vestries out to the end of the Lady Chapel were added 1966-74 by Laurence King.
The following slideshow is of
- the church and “Lady Chapel” (extended 13th-century east chapel of south transept) from S (engraving by the brothers Buck 1726/me showing Brakspear’s rebuilt transept incorporating the Lady Chapel)
- east end of church from NE (postcard before 1922/wikimedia of King E end because I never bothered to photograph this bit properly)
- the “Lady Chapel” (postcard/me).
Worksop nave itself however, which served as the parish church alone until the expansion campaign in the 1920s, has one of the most unusual and downright weird elevation designs of Early Gothic England.

In the mid 12th century, as usual, the bits needed for the coventual choir were built: namely the east arm, transepts and, to buttress the central tower, one bay of the nave. Only the latter survives from this initial build. The nave was completed from this one bay, around 1200, and its odd elevation seems to represent a scaling back from the ambition it originally represented. Instead of the clerestory windows being placed on top of the gallery openings, they were built on top of mini openings over the piers. This leads to the memorable system where the gallery openings intrude into the storey above (note there is no sill course to the E of the first gallery opening) and the whole thing has a syncopated rhythm. It’s also very conservative stylistically, retaining round arches exclusively (except for the aisle vaulting, which is pointed, but added last), and simply trading scalloped capitals for stiff-leaf ones and billet decoration for dogtooth.

Priory of St Peter, Thurgarton
Augustinian canons – founded 1140 – surrendered 14 June 1538 – 10 canons at dissolution
£359 gross / £259 net
And finally. One of the most obscure “lost cathedrals”, at least one with anything left of it at all. A community of Austin canons in honour of St Peter by, typically, a second-gen Anglo-Norman lord at one of his controlled manors: Ralph, 2nd Baron Eyncourt. He had been advised so by the late Archbishop Thurstan of York – remember, the diocese of York reached down all the way down here in Nottinghamshire – to augment the religious life through his diocese with an Austin house, and so followed through.
When the gruesome twosome, commissars Richard Layton and Thomas Legh, visited Thurgarton in 1536, they wrote up the rap sheet from hell for the house:
“10 sodomites, some with boys. Incontinence, Thos. Dethyk, prior, with several women, and 6 others with married and single women; 8 seek to be released from religion. A pilgrimage is held to St. Ethelburg”
I know, a pilgrimage! To a woman of all things! Terrible! (although the Latin they used is ad Sanctum Ethelburgum, which misgenders her). Prior Thomas had to resign, but when the lads came back to force the surrender deed two years later, ten canons still got Crown pensions. Layton and Legh, were of course, manipulative bullies who would throw around sodomy and paedo accusations like confetti (remember, at this point sodomy broadly meant “unnatural sex”, and the commissars were probably emboldened to wantonly wield it because of the passing of the Buggery Act through parliament in 1533).
What’s left at Thurgarton now is a tiny, mangled fragment serving as a parish church. I remember being rather shocked when I visited in 2010 to find a notice in the porch rather snootily saying access was by “prior appointment only”, and even more when I passed by in 2018 and the same notice was still there! (Nottinghamshire is not great for parish church tourism, sadly) The churchyard is full of horrible thick evergreens too, making the exterior difficult to photograph, or indeed, see.

Apart from the tower, all the structure you can see in this image: the chancel, the whole S aisle with its S porch and the nave gable, are from 1852-3. National Monuments Record (who didn’t seem to get inside either)
The problem is that the only way you can really comprehend the building is if you are cheeky enough to go down the driveway of “The Priory” to see the west front (I wasn’t, but I don’t think I realised what there was to see). When you understand that the one tower was mirrored by another with a full-height west front in between, you get what a big potato this church was.


There was again, little chance of this thing ever becoming a cathedral, as a William Cowper (not that one) was so keen on acquiring the site he actually seems to have travelled from Westminster to meet commissioners Legh and Freman at Thurgarton on the day of surrender. A year later, 15 Mar 1539, Cowper had bought it off the Crown for £510 6s 8d plus his holdings in Cuddington (Surrey) to facilitate the construction of the great royal palace of Nonsuch which was just beginning near there. Cowper built a house there which is visible next to the church in the Bucks brothers engraving, but was rebuilt in its current Georgian brick form in 1777 for John Gilbert Cooper. The undercroft of the west range of the cloister is still underneath.
The Austin Priory church’s parochial mandate was maintained by keeping the north-west tower, retaining the main arcades (but not the triforium and clerestory above) and blocking them up as walls. The arcades were unblocked in 1852-3 by local architect T.C. Hine, the north aisle to the churchyard being rebuilt with its own gable, the south aisle by the house being only a few feet wide, simply to expose the piers.
![128ThurgartonX[1]](https://stainedglassattitudes.com/wp-content/uploads/2020/07/128thurgartonx1.jpg)
The eastern parts of Thurgarton Priory have never been excavated, even though there is something similar in magnitude to at least Worksop under there. A great shame really. However, its status a private house is much better than what it used to be until the mid-1990s: a “research centre” for Boots PLC which was notorious for its vivisection experiments: the Animal Liberation Front breaking in 1982 and 1990 to rescue beagles. At least we have Google Earth, and you can see the size of what was likely the entire monastic precinct. A completely conjectural plan hangs in the parish church, I’ve overlaid it gives you an idea of how extensive this church could have been. Until we have some geophysics done, it’s the best there’s going to be.
That completely conjectural plan is about 90 metres, by the way. We shouldn’t get too carried away, perhaps: the church was clearly not a full cathedral-scale building like Wenlock. It had a three-storey elevation (which is preserved against the surviving tower) but not high or even aisle vaulting, and the preserved three bays of each arcade, while displaying remarkable variety even with the small sample we have, are not terribly tall. Below is a reconstruction of the full nave elevation, with the surviving stonework in grey:
![dintelevrecon[1]](https://stainedglassattitudes.com/wp-content/uploads/2020/07/dintelevrecon1-e1594489672784.jpg)
If you are curious about the church, I suggest this rather hidden-away page on the Southwell Churches website, advised in part by the research on the standing fabric done by Jenny Alexander. Also this excellent local site that I’ve sourced a good portion of the pictures and pointers on the history from.
And that’s the Tudor cathedrals that could have been! Even if many of them survived in part anyway!
Nevertheless I was keen to finish this as batch because it was such a fascinating little documented episode in the Henrician court. If you enjoyed this, a reminder I have a tip jar and would be overjoyed if you threw a proverbial coffee in it. Absolutely no obligation at all, but it’s nice to get even a tiny bit of extra cash-in-hand during the plague year when much of my income has evaporated!
![5cbed8a433a3f45a772abaf5_SupportMe_blue[1]](https://stainedglassattitudes.com/wp-content/uploads/2020/07/5cbed8a433a3f45a772abaf5_supportme_blue1.png)
Future installments of MonasteryQuest™ should concern more entirely disappeared cathedral-scale churches, and also tiny priories which have often only been discovered in the last few decades. Stay tuned!


















![5002_001[1]](https://stainedglassattitudes.com/wp-content/uploads/2020/07/5002_0011-e1593794344611.jpg)
































![18ff60f5-1ec1-4af1-9c10-807a5055e378[1]](https://stainedglassattitudes.com/wp-content/uploads/2020/07/18ff60f5-1ec1-4af1-9c10-807a5055e3781.jpg)
![DJSJyAAW4AEFNr0[1]](https://stainedglassattitudes.com/wp-content/uploads/2020/07/djsjyaaw4aefnr01-e1594153007174.jpg)

![leicester-abbey_1[1]](https://stainedglassattitudes.com/wp-content/uploads/2020/07/leicester-abbey_11.jpg)






![227-01-Wenlock-Abbey[1]](https://stainedglassattitudes.com/wp-content/uploads/2020/07/227-01-wenlock-abbey1.jpg)












![Thurgarton-Powell-1819[1]](https://stainedglassattitudes.com/wp-content/uploads/2020/07/thurgarton-powell-18191-e1594497183862.jpg)
Reblogged this on aadildesai.